P7

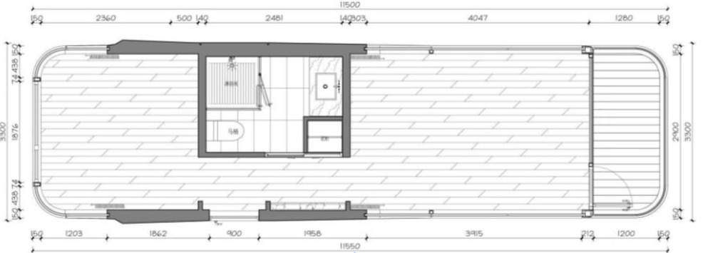
Size: L11.5M * W3.3M * H3.2M
Floor Area: 38㎡
Number of Guests: 2–4 people
Maximum Power: 11.5KW / 17KW
Total Net Weight: ≈8 tons

DOUBLE LAYERED

ALUMINUM VENEER STRUCTURE

WATER PURIFICATION SYSTEM

GALVANIZED STEEL

FRESH AIR SYSTEM

Description

Main Peripheral Structure

  • Main Frame (Galvanized Steel Frame Structure 5.0mm) — Standard configuration
  • Exterior Cladding (Aluminum Alloy Aluminum Sheet 2.0mm) — Standard configuration
  • Surface Treatment of Exterior Cladding (Fluorocarbon Paint Baking Finish) — Standard configuration
  • Thermal Insulation and Waterproof Layer (Polyurethane Insulation Layer) — Standard configuration
  • Glass Curtain Wall (6+15A+6 Insulated Low-E Tempered Glass) — Standard configuration
  • Bedroom Skylight (6 + 1.52 + 6 Laminated Tempered Glass) — Standard configuration
  • Panoramic Balcony (6 + 1.52 + 6 Tempered Glass Guardrail) — Standard configuration
  • Window (6 + 1.52 + 6 Laminated Tempered Glass) — Standard configuration
  • Entrance Door (Custom Stainless Steel Door) — Standard configuration
  • Entrance Lock (Waterproof Smart Door Lock for Outdoor Hotel Use) — Standard configuration
  • Electrical Equipment Room (Air Conditioner & Water Heater) — Standard configuration
  • Equipment Room Door (Custom Aluminum Alloy Door) — Standard configuration
  • Perimeter Light Strip (Ambient Surround Light Strip) — Standard configuration
  • Top Light Strip (Ambient Surround Light Strip) — Standard configuration

Environmentally Friendly Interior Decoration

  • Electric Sunshade Curtains for Bedroom Skylight — Standard configuration
  • Bedroom Ceiling (Aluminum Alloy Aluminum Sheet) — Standard configuration
  • Bedroom Wall (High-Grade Eco-Friendly Carbon Crystal Panel) — Standard configuration
  • Bedroom Floor (6mm High-Grade SPC Rigid Core Locking Flooring) — Standard configuration
  • Bedroom Ambient Surround Light Strip — Standard configuration
  • Bedroom Branded Downlights — Standard configuration
  • Bedroom Motorized Curtain Track — Standard configuration
  • Bathroom Ceiling (Bamboo-Wood Fiber Panel) — Standard configuration
  • Bathroom Wall (High-Grade Eco-Friendly Carbon Crystal Panel) — Standard configuration
  • Bathroom Floor (High-Grade Anti-Slip Ceramic Tile) — Standard configuration
  • Bathroom Privacy Door (One-Way Frosted Tempered Glass) — Standard configuration

Hardware, Bathroom and Furniture

  • High-End Smart Electric Water Heater + Shower Set (ODJIE) — Standard configuration
  • Custom Sintered Stone Vanity / Sink / Mirror / Cabinet / Floor Drain — Standard configuration
  • Toilet (HEGII) — Standard configuration
  • Lighting & Ventilation — Standard configuration
  • Towel Warmer / Rack — Standard configuration

Electrical Appliances / Water and Electricity

  • Whole-House Brand Cables (1.5mm² / 2.5mm² / 4mm² / 10mm² & Cat 6 Network Cable) — Standard configuration
  • Branded Insulated PVC Conduits — Standard configuration
  • Whole-House Explosion-Proof & Pressure-Resistant Water Supply and Drainage Pipes — Standard configuration
  • Split-Type Cooling & Heating Air Conditioner (2 HP – Midea) — Standard configuration
  • 5-Pin / 3-Pin Power Sockets (Country-Specific Standard) — Standard configuration
  • Switch Panels — Standard configuration

Product Accessories

  • Lifting Rings / Transport Fixings / Connectors — Standard configuration
  • Leg Supports — Standard configuration

Optional Configuration

  • Double-Layer Insulation — ask price
  • Water Pipe Heating — ask price
  • Underfloor Heating — ask price
  • Three-Layer Glass — ask price
  • Kitchen — ask price

Reviews

There are no reviews yet.

Be the first to review “P7”

Your email address will not be published. Required fields are marked *

Note: Quotation valability 15 days, Payment terms 50% down in advance-50% before shipping, Delivery Time 50 working days. The price includes tax, on-site installation fees, on-site construction cost, on-site lifting equipment and other labors costs. No refund is supported upon receipt of deposit

Space Capsule Nest was created from a simple observation: more and more people and businesses in the UK were searching for modern living solutions – glamping pods, cabins, small homes – but struggled to find products that combine design, quality and realistic pricing.

Contact Info

Social Links